HOME - 지성갤러리 > 완공갤러리 
RC 56평형
RC하우스 경기 양평
1.5층 거실오픈을 통한 개방감 확보하고,
2층은 외부발코니와 연계된 간이주방설치로 편의성 향상 시켰습니다.
각 실별 용도에 맞는 여유로운 공간으로 설계한
주변 지형과 어우러지는 모던한 스타일의 외관을 가진 주택입니다.



01 담당 현장 직원
Manager in Field


02 건축개요
Housing Summary| 총면적 | 184.60㎡ (55.84py) | 구조 | 철근콘크리트조 |
|---|---|---|---|
| 1층면적 | 131.14㎡ (39.67py) | 지붕 | 평슬라브 |
| 2층면적 | 53.46㎡ (16.17py) | 외부마감 | 테라코트(플렉시텍스),적삼목,탄화목사이딩,세라믹사이딩 |
| 3층면적 | - | 내부마감 | LG실크벽지, LG강화마루 |
| 1층포치 / 데크 | 21.20㎡ (6.41py) / 17.13㎡ (5.18py) | 창호 | LG이중창호, LG시스템창호 |
| 2층발코니 / 베란다 | 9.94㎡ (3.01py) | 다락 / 거실오픈 | - / 1.5층 오픈 |
| 3층발코니 / 베란다 | - |
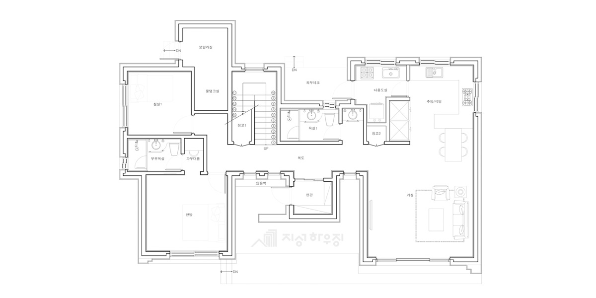
03 공간구성
Floor Plan| 1F | 1층 구성: 현관,거실,주방/식당,창고,안방,부부욕실,다용도실,보일러실,침실1,욕실1 |
|---|
| 2F | 2층 구성: 침실2,침실3,욕실2,간이주방 |
|---|
04 완공사진
Completion Photo