HOME - 지성갤러리 > 설계갤러리 Classic 47평형
목조 클래식
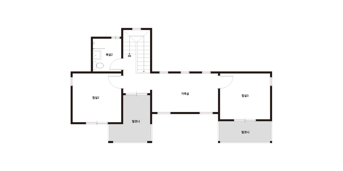
2층의 넓은 가족실을 두어 자녀들의 공용 공간 확보
웅장하면서도 고급스런 인조석으로 포인트를 주어 고급스런 이미지 연출
01 외부투시도
Bird's-eye view
02 건축개요
Housing Summary| 총면적 | 156.83㎡ (47.44py) | 구조 | 경량목구조 |
|---|---|---|---|
| 1층면적 | 105.50㎡ (31.91py) | 지붕 | 아스팔트싱글 |
| 2층면적 | 51.33㎡ (15.53py) | 외부마감 | 스타코, 인조석 |
| 3층면적 | - | 내부마감 | LG실크벽지, LG강화마루 |
| 1층포치 / 데크 | 3.77㎡ (1.14py) / 26.03㎡ (7.87py) | 창호 | 시스템창호 |
| 2층발코니 / 베란다 | 13.17㎡ (3.98py) | 다락 / 거실오픈 | - / 1.5층 오픈 |
| 3층발코니 / 베란다 | - |
03 설계컨셉
Design concept04 공간구성
Floor Plan| 1F | 1층 구성: 거실, 주방/식당, 안방, 부부욕실, 드레스룸, 다용도실, 보일러실, 현관, 침실1, 욕실 |
|---|
| 2F | 2층 구성: 침실2, 침실3, 가족실, 욕실 |
|---|