HOME - 지성갤러리 > 설계갤러리 Modern 33평형
목조 모던
심플한 모던타입으로 필로티 부분을 주차장으로 계획
1층은 거실과 주방 자녀방으로, 필로티가 있는 2층은 부부공간으로 구성하여 층별 공간 분리
01 외부투시도
Bird's-eye view
02 건축개요
Housing Summary| 총면적 | 110.45㎡ (33.41py) | 구조 | 경량목구조 |
|---|---|---|---|
| 1층면적 | 77.64㎡ (23.49py) | 지붕 | 아스팔트싱글 |
| 2층면적 | 32.81㎡ (9.93py) | 외부마감 | 스타코, 적삼목, 세라믹사이딩 |
| 3층면적 | - | 내부마감 | LG실크벽지, LG강화마루 |
| 1층포치 / 데크 | 5.18㎡ (1.57py) / 14.73㎡ (4.46py) | 창호 | 시스템창호 |
| 2층발코니 / 베란다 | - | 다락 / 거실오픈 | - / 1층 오픈 |
| 3층발코니 / 베란다 | - |
03 설계컨셉
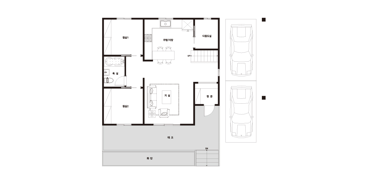
Design concept04 공간구성
Floor Plan| 1F | 1층 구성: 현관, 거실, 주방/식당, 다용도실, 침실1, 침실2, 화장실1 |
|---|
| 2F | 2층 구성: 안방, 드레스룸, 화장실2 |
|---|