HOME - 지성갤러리 > 설계갤러리 Modern 45평형
목조 모던
'ㄷ'자 구조와 경사 지붕 노풀로 다이나믹한 외형 연출
징크와 세라믹사이딩 마감으로 모던함 강조
01 외부투시도
Bird's-eye view
02 건축개요
Housing Summary| 총면적 | 149.16㎡ (45.12py) | 구조 | 경량목구조 |
|---|---|---|---|
| 1층면적 | 97.16㎡ (29.39py) | 지붕 | 알루미늄징크 |
| 2층면적 | 52.00㎡ (15.73py) | 외부마감 | 적삼목, 스타코, 세라믹사이딩 |
| 3층면적 | - | 내부마감 | LG실크벽지, LG강화마루 |
| 1층포치 / 데크 | 4.00㎡ (1.21py) / 22.20㎡ (6.72py) | 창호 | 시스템창호 |
| 2층발코니 / 베란다 | 9.90㎡ (2.99py) | 다락 / 거실오픈 | - / 2층 오픈 |
| 3층발코니 / 베란다 | - |
03 설계컨셉
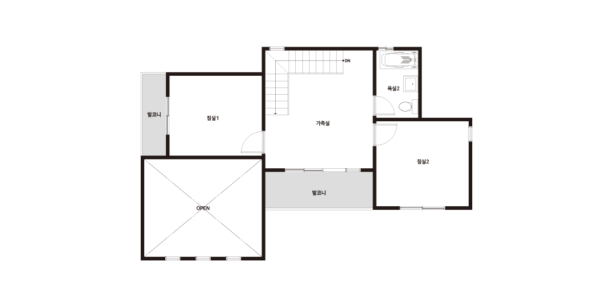
Design concept04 공간구성
Floor Plan| 1F | 1층 구성: 현관, 거실, 주방, 식당, 안방, 드레스룸, 부부욕실, 다용도실, 보일러실, 욕실1 |
|---|
| 2F | 2층 구성: 침실1, 침실2, 욕실2, 가족실 |
|---|